な・ら・らの
貸店舗情報

物件の建物情報
建物名
な・ら・ら
所在地
奈良市小西町21-1
交通
近鉄奈良線「近鉄奈良」駅 徒歩1分
構造
鉄骨造
建物階数
地上2階
その他
契約形態:相談・居抜き区画
公式HPhttps://www.nalala.jp/
テナント募集区画概要
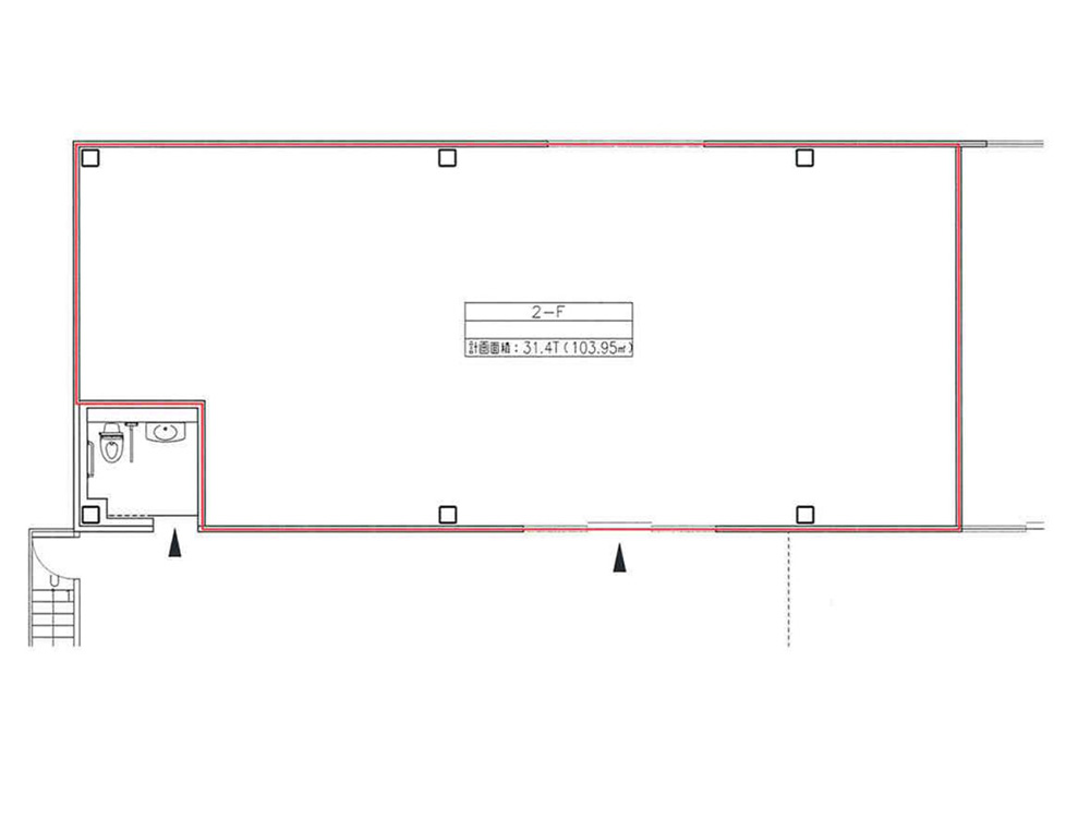
募集区画/1-D
階数
1階
募集面積
109.11㎡
坪数
33.00坪
賃料(月額)
応相談
入居時期
応相談
出店可能業種
飲食
備考
居抜きでのご相談可能
募集区画/1-D
階数
1階
募集面積
109.11㎡
坪数
33.00坪
賃料(月額)
応相談
入居時期
応相談
出店可能業種
飲食
備考
居抜きでのご相談可能

















