ローレルコート船堀

エアリーステージ:Hr type|【公式】ローレルコート船堀|東京都江戸川区の新築分譲マンション

  • Hr type
  • Hr typeHr type
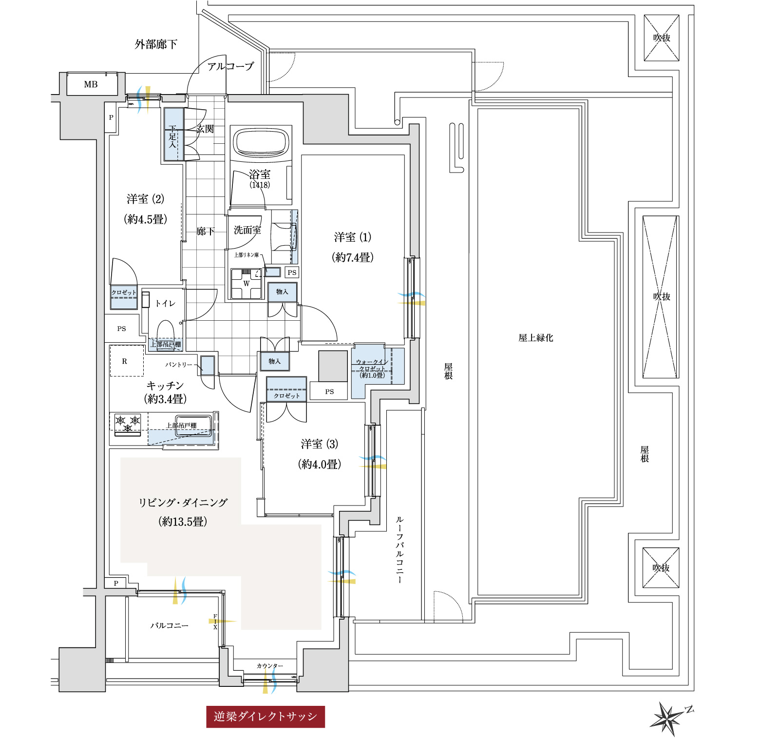
  • 7㎡超の広々ルーフバルコニー

    外とのつながりを楽しむカウンター

    3面採光の角部屋&77㎡超の広々3LDK

    光を取り込む逆梁ダイレクトサッシ

  • 採光

    採光

  • 通風

    通風

  • 収納

    収納

  • 床暖房

    床暖房

  • WIC=ウォークインクロゼット

※掲載の間取りは、2024年1月時点の計画段階の図面を基に描き起こしているため変更になる場合があります。

PAGE TOP